
HD Jenis Eropah Hoist Electric Single-girder Overhead Crane
European Single Girder Overhead Crane adalah jentera pengangkat yang padat yang direka dan diperbuat mengikut ketat mengikut piawaian FEM dan DIN, yang mempunyai teknologi canggih dan reka bentuk yang indah. Dibahagikan kepada jenis umum dan jenis penggantungan, menyokong penggunaan angkatan elektrik piawaian Eropah, sesuai untuk bengkel dan pengendalian bahan gudang, pemasangan ketepatan suku cadang yang besar dan tempat-tempat lain.
HD Jenis Eropah Hoist Electric Single-girder Overhead Crane
Penerangan ringkas:
European Single Girder Overhead Crane adalah jentera pengangkat yang padat yang direka dan diperbuat mengikut ketat mengikut piawaian FEM dan DIN, yang mempunyai teknologi canggih dan reka bentuk yang indah. Dibahagikan kepada jenis umum dan jenis penggantungan, menyokong penggunaan angkatan elektrik piawaian Eropah, sesuai untuk bengkel dan pengendalian bahan gudang, pemasangan ketepatan suku cadang yang besar dan tempat-tempat lain.

Ia boleh digunakan secara meluas dalam pembuatan jentera, metalurgi, petroleum, petrifaction, pelabuhan, kereta api, penerbangan awam, makanan, pembuatan kertas, pembinaan, bengkel industri elektronik, gudang dan situasi pengendalian bahan lain, esp. digunakan untuk pengendalian bahan yang memerlukan kedudukan yang tepat, komponen pemasangan komponen yang tepat.

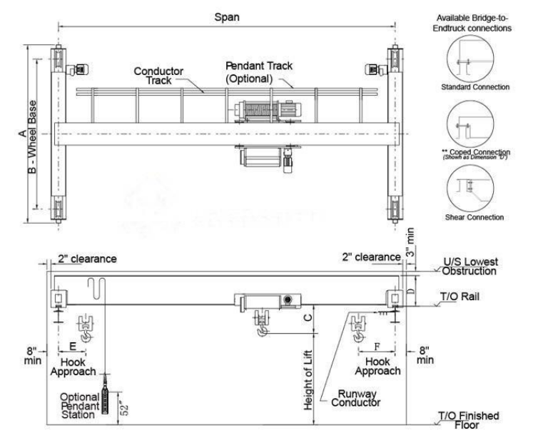
Imej Terperinci:

Lukisan lakaran:

Parameter teknikal:
Span | m | 7.5 | 10.5 | 13.5 | 16.5 | 19.5 | 22.5 | 25.5 |
Kapasiti | t | 1 ~ 12.5t | ||||||
Berat keseluruhan | kg | 1781 ~ 12086 | ||||||
Berat troli | kg | 405 ~ 740 | ||||||
Maks. Beban roda | kn | 13.5 ~ 90.94 | ||||||
Kereta api perjalanan | P24 ~ P43 | |||||||
Kelajuan mengangkat | m / min | 0.8 / 5 | 0.8 / 5 | 0.8 / 5 | 0.8 / 5 | 0.8 / 5 | 0.8 / 5 | 0.8 / 5 |
Ketinggian mengangkat | m | ≥ 6 | ≥ 6 | ≥ 6 | ≥ 6 | ≥ 6 | ≥ 6 | ≥ 6 |
Jumlah kuasa motor | kw | 4.31 | 4.31 | 4.31 | 4.31 | 4.67 | 4.67 | 4.67 |
Kelajuan kren | m / min | 3-30 | 3-30 | 3-30 | 3-30 | 3-30 | 3-30 | 3-30 |
Kelajuan troli | m / min | 2-20 | 2-20 | 2-20 | 2-20 | 2-20 | 2-20 | 2-20 |
Duti kerja | M5 / A5 | |||||||


English
Việt Nam
Kreyòl Ayisyen
tlhIngan
عربي
slovenščina
Ελληνικά
Indonesia
Eesti
עברית
magyar
Español





