
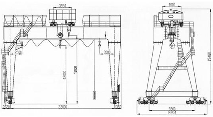
Heavy Lift Crane, Double Beam Gantry Crane 30 Ton
Kren gantri berganda berganda dengan cangkuk digunakan di luar gudang atau keretapi ke sisi untuk melakukan kerja-kerja mengangkat dan memunggah bersama. Kren jenis ini terdiri daripada jambatan, kaki sokongan, organ perjalanan kren, troli dengan winch mengangkat kuat, peralatan elektrik dan sistem kawalan. Sebagai reka bentuk tugas berat, ia boleh digunakan secara meluas dalam semua jenis bidang perindustrian.
kren angkat berat, kren gantian berganda 30 tan
Kren gantri berganda berganda dengan cangkuk digunakan di luar gudang atau keretapi ke sisi untuk melakukan kerja-kerja mengangkat dan memunggah bersama. Kren jenis ini terdiri daripada jambatan, kaki sokongan, organ perjalanan kren, troli dengan winch mengangkat kuat, peralatan elektrik dan sistem kawalan. Sebagai reka bentuk tugas berat, ia boleh digunakan secara meluas dalam semua jenis bidang perindustrian.